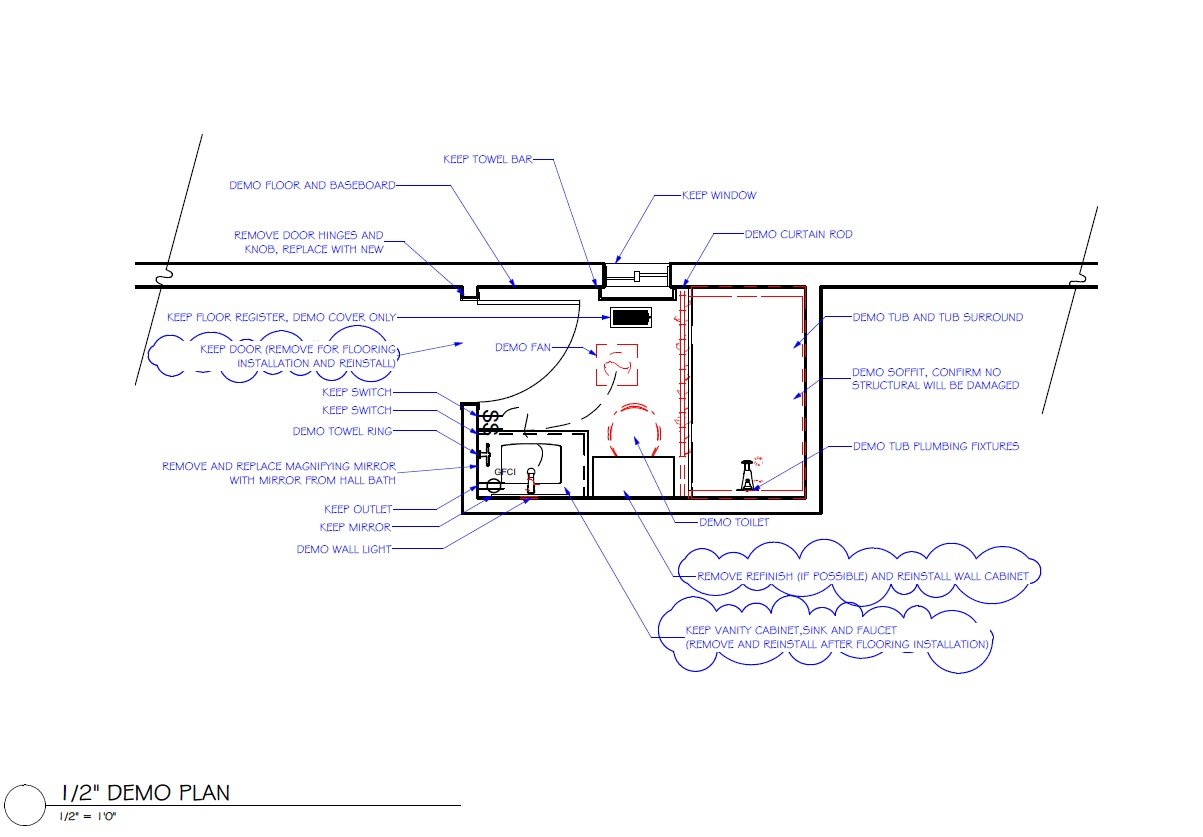
This project was especially meaningful. Designed for my sister and her family a bathroom reimagined to truly support how she lives day to day.

She preferred a shower over a tub so we redesigned the layout to include one while reusing the existing vanity and lighting. Flooring and wall finishes were selected carefully with the budget in mind balancing practicality and durability. We enjoy researching and testing new products and for this space we used a waterproof adhesive no grout vinyl wall tile that delivers the look of tile with a more accessible solution.

Simple thoughtful decisions made a big difference and the client was genuinely happy with the result.

Bellevue, WA

Design by Lorena Johnson
Built by Russ Builders

BEFORE

Previous
Previous

SHOW

Next
Next

RED 1